Denah Rumah Type 36 - Hallo sahabat Desain Rumah, Pada Artikel yang anda baca kali ini dengan judul Denah Rumah Type 36, kami telah mempersiapkan artikel ini dengan baik untuk anda baca dan ambil informasi didalamnya. mudah-mudahan isi postingan
Artikel Denah Rumah, yang kami tulis ini dapat anda pahami. baiklah, selamat membaca.
Judul : Denah Rumah Type 36
link : Denah Rumah Type 36
Berikutnya adalah Denah Rumah Type 45
Judul : Denah Rumah Type 36
link : Denah Rumah Type 36
Denah Rumah Type 36
Foto Rumah. Mungkin Anda sedang mencari Denah rumah type 36 untuk acuan membangun Rumah type 36 sesuai keinginan Anda atau sesuai kontur lahan yang akan Anda bangun sebagai rumah idaman.
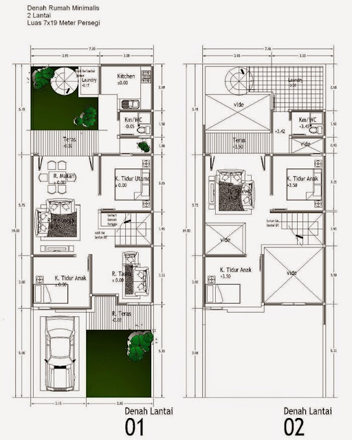
Denah rumah type 36 di bawah ini menampilkan belasan foto denah rumah tipe 36 yang bisa Anda jadikan rujukan dalam membangun rumah idaman Anda.
Rumah type 36
Rumah type 36 adalah tipe rumah yang mempunyai luas bangunan 36 m², dengan ukuran 6m x 6m = 36 m². Luas tanah pada rumah type 36 ini dapat dipadukan dengan beberapa ukuran luas tanah seperti 60 m² atau 72 m², sehingga disebut rumah type 36/60 dan tipe rumah 36/72. Tipe rumah 36 biasanya mempunyai 2 kamar tidur, 1 ruang tamu dan ruang keluarga serta 1 kamar mandi.
Silahkan save di gadget atau komputer Anda denah rumah type 36 yang mana yang akan Anda jadikan sebagai rencana denah rumah Anda
.
Denah rumah type 36 di bawah ini menampilkan belasan foto denah rumah tipe 36 yang bisa Anda jadikan rujukan dalam membangun rumah idaman Anda.
Rumah type 36
Rumah type 36 adalah tipe rumah yang mempunyai luas bangunan 36 m², dengan ukuran 6m x 6m = 36 m². Luas tanah pada rumah type 36 ini dapat dipadukan dengan beberapa ukuran luas tanah seperti 60 m² atau 72 m², sehingga disebut rumah type 36/60 dan tipe rumah 36/72. Tipe rumah 36 biasanya mempunyai 2 kamar tidur, 1 ruang tamu dan ruang keluarga serta 1 kamar mandi.
Silahkan save di gadget atau komputer Anda denah rumah type 36 yang mana yang akan Anda jadikan sebagai rencana denah rumah Anda
.
Berikutnya adalah Denah Rumah Type 45
Demikianlah Artikel Denah Rumah Type 36
Sekianlah artikel Denah Rumah Type 36 kali ini, mudah-mudahan bisa memberi manfaat untuk anda semua. baiklah, sampai jumpa di postingan artikel lainnya.
Anda sekarang membaca artikel Denah Rumah Type 36 dengan alamat link https://inspirasidesainrumahbagus.blogspot.com/2015/06/denah-rumah-type-36.html

















0 Response to "Denah Rumah Type 36"
Post a Comment