11 Desain Rumah Minimalis 4 Kamar Tidur - Hallo sahabat Desain Rumah, Pada Artikel yang anda baca kali ini dengan judul 11 Desain Rumah Minimalis 4 Kamar Tidur, kami telah mempersiapkan artikel ini dengan baik untuk anda baca dan ambil informasi didalamnya. mudah-mudahan isi postingan
Artikel Interior,
Artikel Rumah,
Artikel Rumah Modern, yang kami tulis ini dapat anda pahami. baiklah, selamat membaca.
Judul : 11 Desain Rumah Minimalis 4 Kamar Tidur
link : 11 Desain Rumah Minimalis 4 Kamar Tidur
Judul : 11 Desain Rumah Minimalis 4 Kamar Tidur
link : 11 Desain Rumah Minimalis 4 Kamar Tidur
11 Desain Rumah Minimalis 4 Kamar Tidur
Model Desain Rumah Minimalis 4 Kamar Tidur. Apa yang langsung muncul dibenak Anda ketika melihat sebuah rumah minimalis? Rumah kecil dengan ukuran ruangan yang kecil pula. Rumah minimalis tersedia dengan berbagai tipe dan macam. Untuk ukuran rumah ini memang tergolong rumah kecil karena diperuntukkan bagi masyarakat yang ingin memiliki rumah dengan harga terjangkau.
Rumah minimalis merupakan rumah pilihan yang populer bagi mereka yang tidak bisa memiliki rumah besar dengan harga tinggi. Sama dengan rumah besar lainnya, rumah minimalis harus dibuat dengan ruangan yang lengkap, seperti ruang tamu, ruang makan, dapur, dan juga kamar tidur. Jumlah kamar tidur untuk sebuah rumah minimalis pada umumnya biasanya berjumlah 2 buah kamar tidur.
Bagaimana jika Anda memiliki banyak anggota keluarga? Hal inilah yang biasanya sering dialami oleh pemilik rumah minimalis dengan jumlah kamar tidur yang terbatas. Total anggota keluarga berjumlah 4 sampai 5, namun kamar tidur yang tersedia hanyalah 2 buah kamar tidur, bagaimana cara Anda mengatasinya? Sebelum Anda memilih untuk membeli rumah minimalis jadi atau membangun sebuah rumah minimalis dari awal.
Rumah Minimalis. Hal terpenting yang perlu dalam membeli atau memilih rumah minimalis yaitu memikirkan kenyamanan keluarga Anda, terutama kenyamanan dimana mereka bisa mendapatkan ruang pribadi seperti kamar tidur. Kamar tidur minimalis untuk rumah minimalis tidak memerlukan ukuran yang besar.
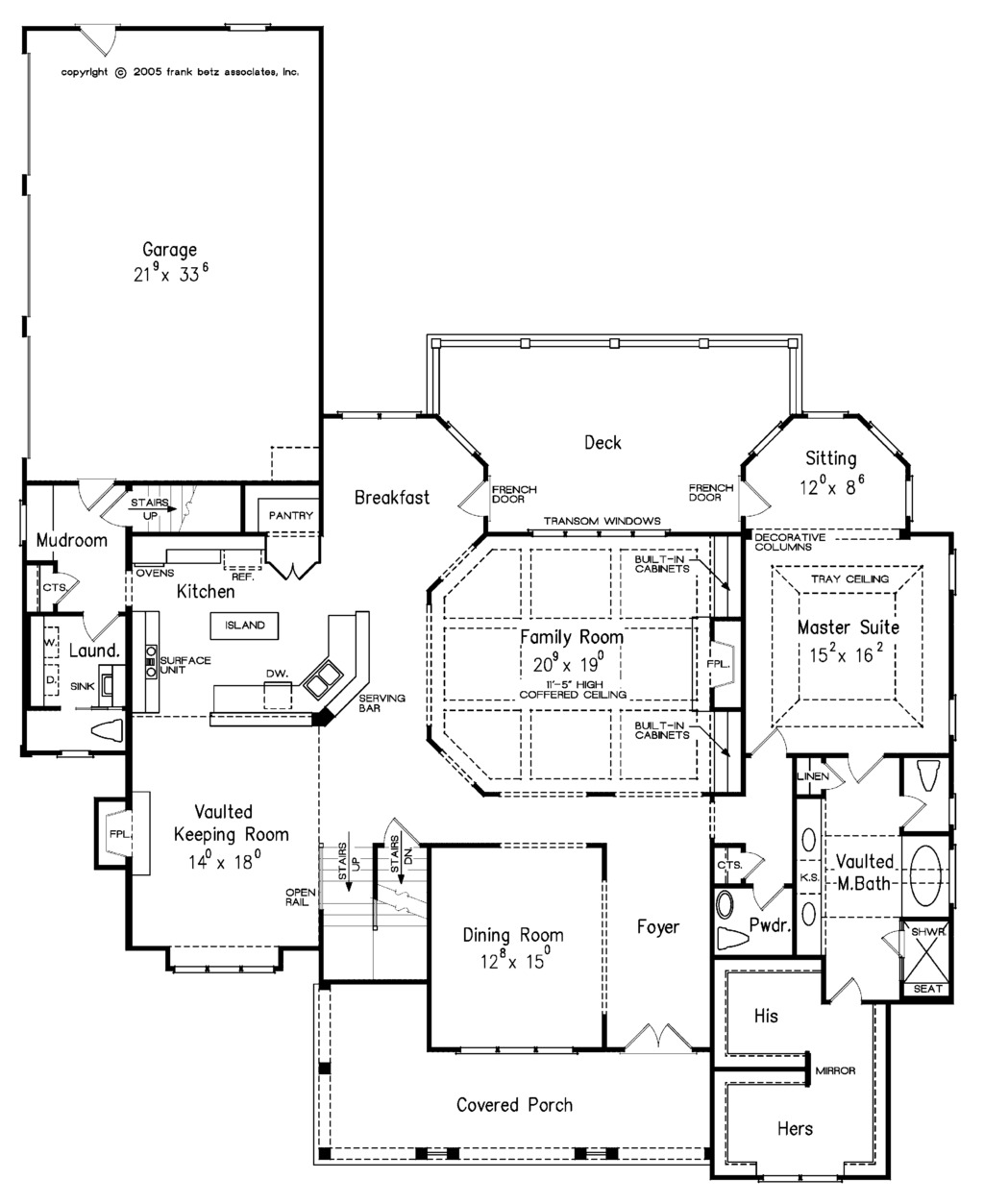
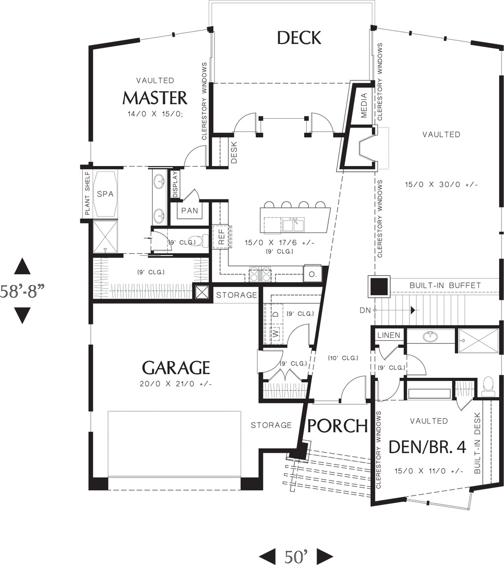
Contoh Gambar Desain Rumah Minimalis 4 Kamar Tidur
![]() |
| Desain Rumah Minimalis 4 Kamar Tidur |
Anda tidak perlu bingung dan khawatir lagi. Berkembangnya jaman, berkembang pula cara mendesain sebuah rumah minimalis dengan lebih banyak kamar tidur. Sekarang kita akan membahas bagaimana cara mendesain sebuah rumah minimalis dengan 4 kamar tidur. 4 kamar tidur, jumlah kamar yang cukup untuk Anda dan anak-anak Anda. Berikut ini cara mendesan rumah minimalis 4 kamar tidur.
3 Cara Desain Rumah Minimalis 4 Kamar Tidur
1. Rumah minimalis dengan 2 lantai
Cara yang pertama ini lebih cocok untuk Anda yang ingin membangun sebuah rumah minimalis baru. Rumah minimalis tidak bisa lagi dibuat melebar ke samping, tapi ke atas dengan membuat sebuah lantai rumah kedua. Lantai kedua ini bisa Anda manfaatkan sebagai area apa saja, seperti area menjemur pakaian, bahkan area untuk menambahkan 1 atau 2 kamar tidur baru.
Kelebihan dari rumah minimalis dengan 2 lantai dan kamar tidur di lantai kedua adalah Anda tidak akan terganggu dengan aktifitas anggota keluarga Anda di ruangan lain. Biasanya lantai kedua memang diprioritaskan untuk pembuatan kamar tidur, sehingga Anda bisa lebih menikmati waktu istirahat Anda. Buatlah kamar tidur yang minimalis di lantai kedua agar Anda bisa membuat tidak hanya 1 kamar tidur, taoi juga 2 kamar tidur sekaligus.
2. Membagi ruang tengah
Rumah minimalis tidak memiliki sekat ruangan yang banyak. Sekat ruangan seperti dinding biasanya hanya berlaku untuk kamar tidur dan kamar mandi. Selebihnya Anda akan mendapatkan area yang luas di tengah rumah yang sering disebut ruang tengah. Ruang tengah ini dapat Anda bagi menjadi beberapa ruangan lain, seperti dapur, area makan, area santai, dan juga kamar tidur.
Membagi ruang tengah pada rumah minimalis haruslah dilakukan dengan teliti dan pengukuran yang tepat. Anda bisa membuat kamar tidur di ruang tengah dengan menempatkannya di sudut ruangan, agar Anda bisa mendesain area yang tersisa untuk keperluan ruangan lain. Anda perlu mendesain kamar tidur di ruang tengah ini dengan memperkirakan ukuran perabotan yang akan digunakan.
3. Kombinasi ruangan
Kombinasi ruangan adalah cara yang menyatukan beberapa ruangan menjadi satu. Hal ini berkaitan dengan cara kedua sebelumnya, yaitu ruang tengah. Caranya adalah dengan menjadikan ruang tamu, ruang makan, dan dapur dalam satu area. Area yang tersisa yang lain bisa Anda gunakan untuk sebuah kamar tidur, tentunya jika mencukupi, Anda bisa membuat tidak hanya 1 kamar tapi lebih dari itu.
Baca Juga : 12 Desain Rumah Sederhana Mungil
Cara mendesain rumah minimalis dengan kombinasi ruangan adalah salah satu ide cemerlang untuk mendapatkan sisa ruangan yang lebih dari biasanya. Hal ini dimaksudkan agar Anda bisa memiliki area bebas lain yang bisa Anda manfaatkan untuk kebutuhan lain, salah satunya adalah kamar tidur. Sama seperti membagi ruang tengah, Anda harus melakukan pengukuran area ruangan lebih detail lagi. Semoga informasi 11 Desain Rumah Minimalis 4 Kamar Tidur sangat bermanfaat bagi anda.
Demikianlah Artikel 11 Desain Rumah Minimalis 4 Kamar Tidur
Sekianlah artikel 11 Desain Rumah Minimalis 4 Kamar Tidur kali ini, mudah-mudahan bisa memberi manfaat untuk anda semua. baiklah, sampai jumpa di postingan artikel lainnya.
Anda sekarang membaca artikel 11 Desain Rumah Minimalis 4 Kamar Tidur dengan alamat link https://inspirasidesainrumahbagus.blogspot.com/2017/03/11-desain-rumah-minimalis-4-kamar-tidur.html

























0 Response to "11 Desain Rumah Minimalis 4 Kamar Tidur"
Post a Comment